Квартира на ул. 8 марта
Квартира для пары, в которой девушка художник. В этом дизайн-проекте предусмотрели всё, даже расстановку растений, а цвет стен подбирали вживую, по выкрасам, чтобы квартира получилась как с картинки.
Объект: сталинка
Тип проекта: полный комплект чертежей с визуализацией и подбором мебели
Объект: сталинка
Тип проекта: полный комплект чертежей с визуализацией и подбором мебели
3D-Визуализация объекта
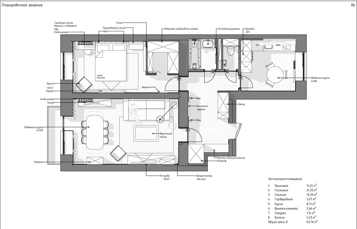
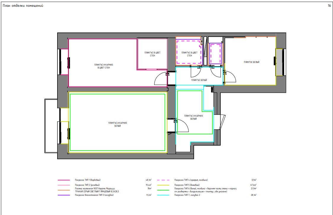
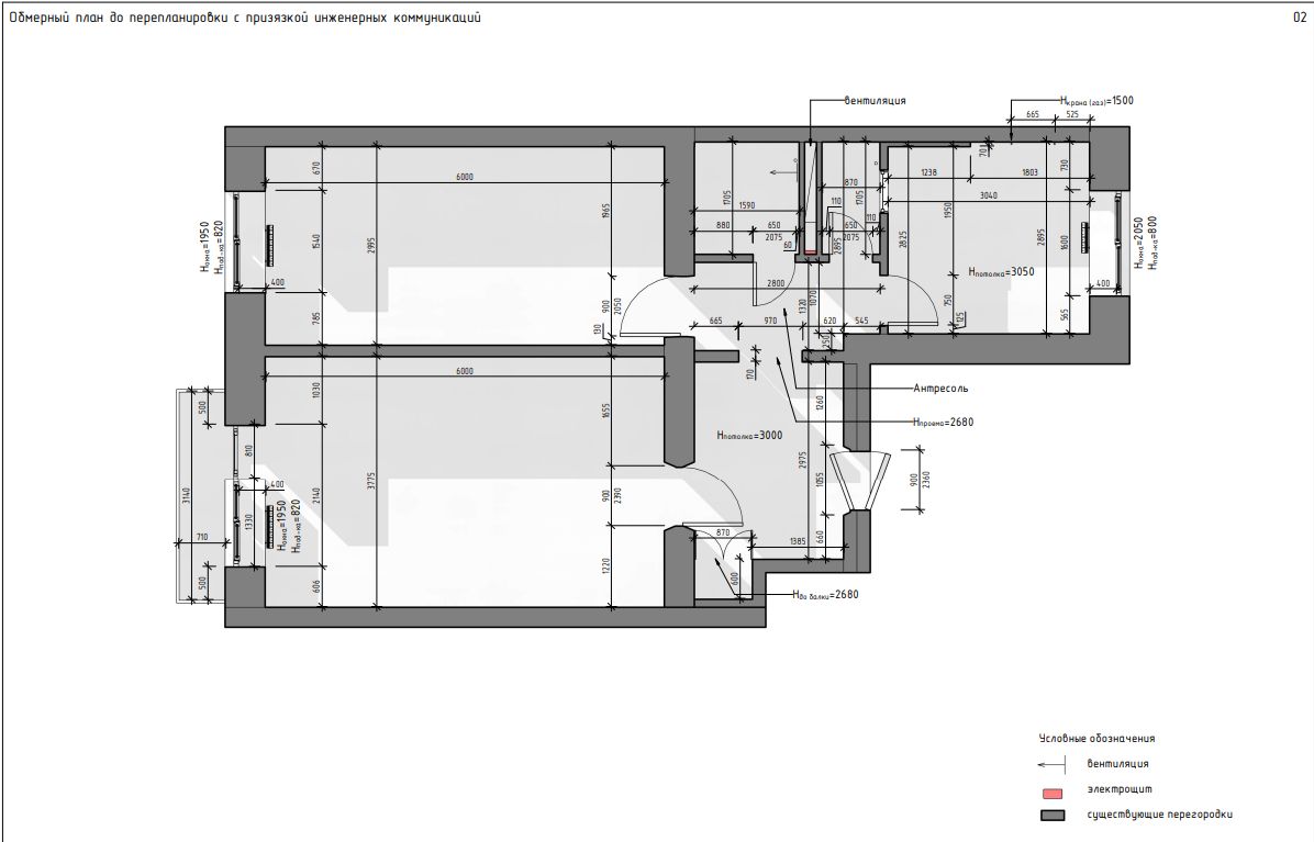
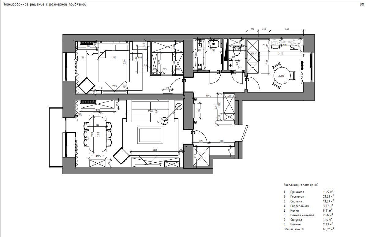
Планировочные решения и чертежи
Ремонт квартиры по дизайн-проекту (реализация)
Видеообзор объекта
Анастасия Плясунова разрабатывала объект «под ключ» и сопровождала проект на каждом этапе: от замеров до подбора мебели; выезжала на стройку с авторским надзором и принимала работы у бригады. Подробный рассказ об объекте и ходе работ ждёт в видео.