Мастера Ремонта
С 2010
в стройке, прорабы с опытом от 7 лет
С 2018
работает отдел дизайна. Сейчас более 50 специалистов в команде
Более 3000
счастливых семей живут в новых квартирах
Визуализации
Готовые ремонты
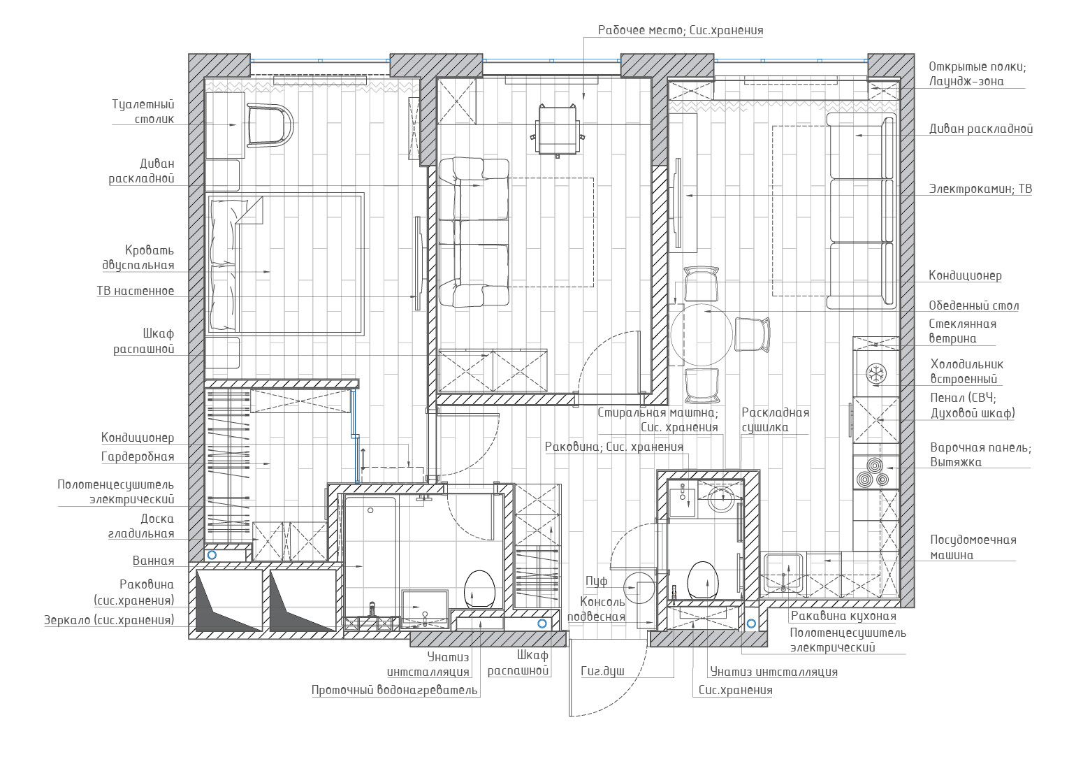
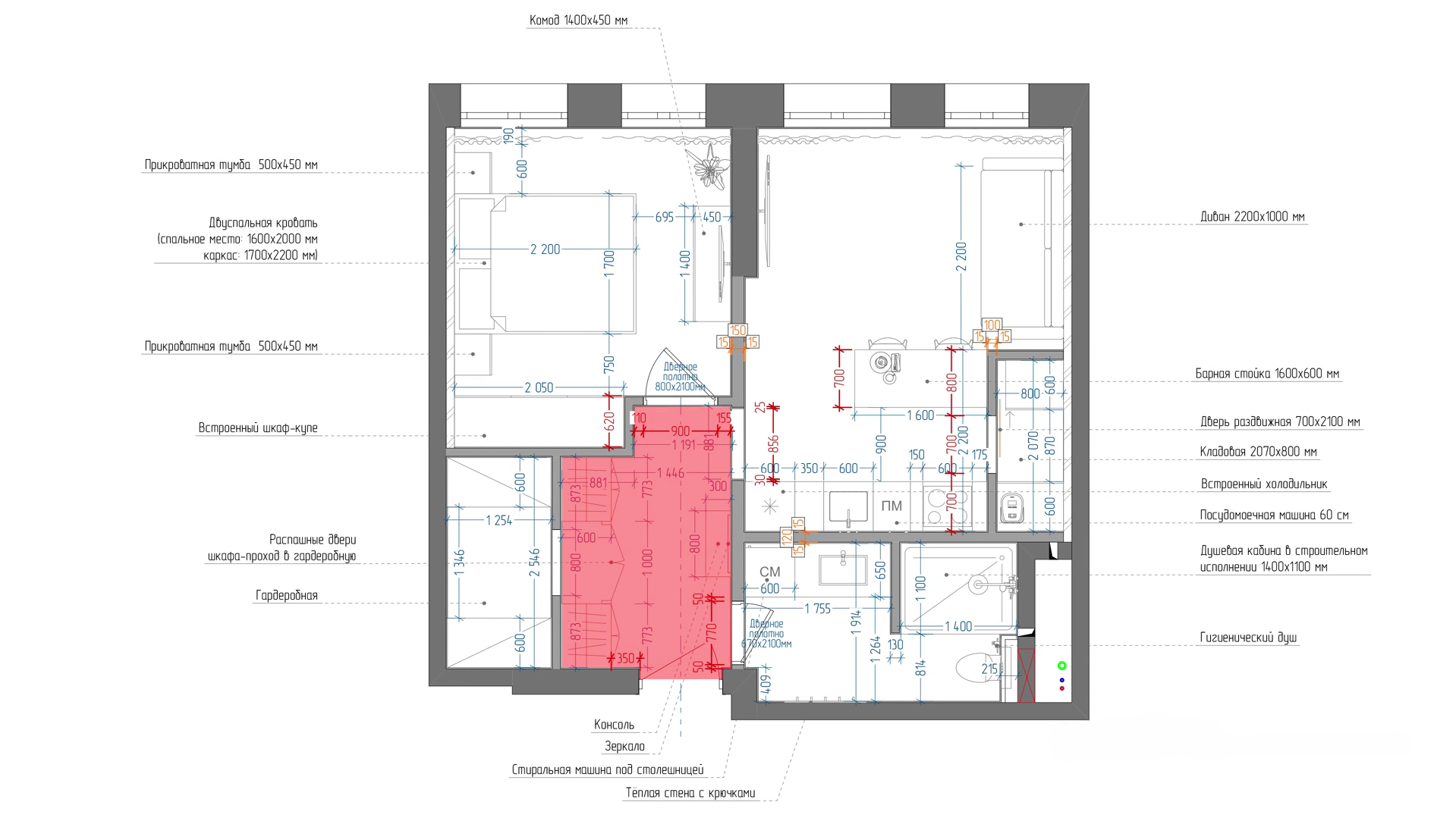
Дизайн-проекты
Видео по объектам
Видео по объектам
Наша команда
Татьяна Киселева
Руководитель отдела дизайна
Виолетта Вишневецкая
Руководитель отдела дизайна
Арсений Попов
Ведущий дизайнер интерьеров
Алина Хренова
Ведущий дизайнер интерьеров
Амирян Гегани
Ведущий дизайнер-интерьеров
Оксана Мышова
Ведущий дизайнер-интерьеров
Елизавета Носкова
Ведущий дизайнер-интерьеров
Дарья Брусянина
Ведущий дизайнер интерьеров